Дома под ключ в Азове
Отзывы из Яндекс Карт
4.9
115 отзывов
Дополнительные услуги 88%
2 154 оценок
Комплектации 89%
1 535 оценок
Планировки 90%
2 484 оценок
Проекты 93%
2 231 оценок
С
Клара Ильюхина18.03.2026 г.
Дом 8х8 оказался очень вместительным для нашей семьи из трех человек. Два этажа, своя комната у каждого, еще и кабинет мужу выделили. Не думали, что на такой площади можно так грамотно распределить пространство.
С
Аркадий16.02.2026 г.
Удобный и практичный дом 5,5х9 с гаражом и навесом. Гараж тёплый, ворота поставили подъёмные. Навес слишком низкий — моя машина не заезжает. Сделали выше бесплатно. В доме живём с женой, нравится компактная планировка.
С
Афанасий14.01.2026 г.
Каркасник 70 м2 для ПМЖ заказывал с увеличенным утеплением, получилось очень тёпло. Единственная проблема — их же бригада монтировала сайдинг кривовато, вид с одной стороны не очень. Сделали скидку на финишную отделку внутри.
С
Никита Владимиров27.04.2025 г.
Мне построили дом из бруса под ключ, и я полностью доволен сотрудничеством с этой фирмой. Отдельно хочу отметить оперативность и чистоту на объекте — после завершения работ не пришлось убирать горы мусора. Дом собран крепко, никаких щелей или скрипов, живу с комфортом.
Отзывы из Google Карт
4.8
69 отзывов
Дополнительные услуги 88%
2 154 оценок
Комплектации 89%
1 535 оценок
Планировки 90%
2 484 оценок
Проекты 93%
2 231 оценок
С
Божена10.05.2026 г.
Уфф, наконец-то стройка закончилась! Дом 7,5х10 с котельной и двумя входами. Пережила и срыв сроков на неделю, и ошибку в разметке фундамента (вовремя заметили, переделали), и дожди. Но сейчас сижу на веранде, пью чай — и забыла всё. Компания молодцы, что довели до ума.
С
Никифор О.03.02.2025 г.
Приятно иметь дело с мастерами, которые знают толк в дереве. Дом из профилированного бруса построили на совесть — ровно, красиво, надежно. Нареканий нет, одна благодарность.
Отзывы из 2гис
4.9
31 отзывов
Дополнительные услуги 88%
2 154 оценок
Комплектации 89%
1 535 оценок
Планировки 90%
2 484 оценок
Проекты 93%
2 231 оценок
С
Веста Шмелёва22.04.2026 г.
Аккуратно поставили баню 3,5х5,5 (нестандарт) с маленькой верандой. В парилке использовали осиновую вагонку — красота! Но в предбаннике полы залили бетонные холодные, пришлось коврики стелить.
С
Ольга С.30.06.2025 г.
Наш дом из бруса выглядит просто потрясающе и радует нас каждый день; соседи постоянно спрашивают, кто же смог так качественно и красиво всё построить, и мы с гордостью рекомендуем компанию «Брус дома».


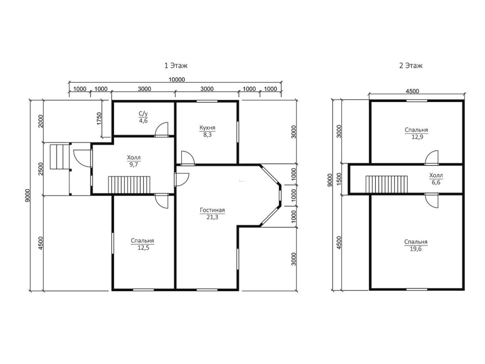
Проект №34 Дом с эркером 9х10

каркас из строганой доски
Создайте свой план для этого проекта
и отправьте его нам на расчет в один клик.
Каркасный дом (150 мм) 9х10 Толщина утепления 150 мм 3132300 Заказать
Каркасный дом (200 мм) 9х10 Толщина утепления 200 мм 3342300 Заказать

Доставка включена в стоимость дома!

Чтобы адаптировать готовые проекты и получить свою индивидуальную планировку, воспользуйтесь нашим планировщиком.

С использованием планировщика вы можете сделать наиболее подходящие планы, эскизы, схемы, чертежи вашего будущего дома с мансардой, эркером, с нужным количеством комнат. В итоге получится прекрасный проект, который стопроцентно отвечает вашим потребностям.

Вы можете подобрать подходящий тип кровли. Крышу можно сделать двускатной, четырехскатной и вальмовой. Двухскатную крышу считают наиболее популярной в небольших постройках.

Востребованные размеры сегодня: мини - до 50 квадратных метров (в основном, одноэтажные); компактные - от 70 до 100 кв. М (обычно 2-этажные); большие постройки - начиная от 150 квадратов и больше.

Можем предложить дуплексы - большие каркасные постройки с двумя входами на 2 семьи. Такие дома предполагаются для нескольких хозяев, они разделяются на две части, каждая половина с отдельным входом.


Наши работы

Перейти в галерею


Комплектация

Площадь застройки: 90 м2
Длина: 9 м
Ширина: 10 м
Общая площадь: 86.8 м2
Исполнение Под ключ (с отделкой)
Фундамент Свайно-винтовой или ж/б сваи (рассчитываются отдельно).
Гидроизоляция фундамента Рубероид в два слоя.
Основание (обвязка) Из обрезного бруса 150х150 мм. 150х200 мм. согласно выбранной толщине утепления. Торцевая доска строганая 45х145/45х195+/-5 мм. согласно выбранной толщине утепления. Обработка антисептиком.
Цокольное перекрытие Строганая доска камерной сушки 45х145/45х195+/-5 мм. с шагом 590 мм. Обработка антисептиком.
Пол черновой Обрезная доска камерной сушки 20х100 мм.
Влаго-ветрозащита чернового пола Мембрана Ондутис А100.
Внешние стены Стойки каркаса из строганой доски камерной сушки 45х145/45х195+/-5 мм. с шагом 590 мм. Верхняя двойная и нижняя обвязки из строганой доски камерной сушки 45х145/45х195+/-5 мм. Разгрузочный ригель из строганой доски 45х145+/-5 мм. Укосины из строганой доски 20х95 мм.
Перегородки Стойки каркаса из строганой доски камерной сушки 45х95+/-5 мм. с шагом 590 мм. Верхняя двойная и нижняя обвязки из строганой доски 45х95+/-5 мм. Разгрузочный ригель из строганой доски камерной сушки 45х145+/-5 мм. Укосины из строганой доски камерной сушки 20х95 мм.
Сборка каркаса На гвозди.
Высота от пола до потолка Дом одноэтажный: 2,5 м. Дом с мансардой: 1-ый этаж- 2,5 м.
2-ой этаж (мансарда)- 2,3 м.
Дом в полтора и два этажа:
1-ый этаж 2,5 м.
2-ой этаж 2,4 м. в полутораэтажном доме
2,5 м. в двухэтажном доме.
Внешняя отделка стен Имитация бруса камерной сушки, сорт АВ, толщиной 17 мм. Монтаж через строганый брусок камерной сушки 45х45+/-5 мм. (вентилируемый фасад). Влаго-ветрозащитная мембрана- Ондутис А100.
Внутренняя отделка стен, перегородок Евровагонка камерной сушки, сорт АВ, толщиной 12,5 мм. по строганой рейке 20х40+/-5 мм. либо ГКЛ 12,5 мм.
Отделка потолка Евровагонка камерной сушки, сорт АВ толщиной, 12,5 мм. по строганой рейке 20х40+/-5 мм. либо ГКЛ 12,5 мм.
Пол чистовой Шпунтованная доска камерной сушки толщиной 35-36 мм. сорт АВ. по строганой рейке 20х40+/-5 мм. либо шпунтованная ДСП 16 мм. по разряженной обрешётке из строганой доски камерной сушки 20х95+/-5 мм.
Утепление (пол, потолок) Минеральная вата Knauf 150/200 мм. согласно выбранной толщине утепления.
Утепление стен Плитный утеплитель Rockwool, толщиной 150/200 мм. согласно выбранной толщине утепления.
Звукоизоляция перегородок Плитный утеплитель Rockwool, толщиной 100 мм.
Пароизоляция (стены, перегородки, пол, потолок) Плёнка Ондутис R70. Дополнительная герметизация нахлёстов/примыканий пароизоляционной плёнки клейкой лентой Delta.
Окна Двухкамерные стеклопакеты ПВХ белого цвета, профиль 60 мм. В комплекте: отливы, подоконники, москитные сетки.
Двери Входная- металлическая, утеплённая (Россия). Межкомнатные- филёнчатые.
Наличники на окна и двери Наличник деревянный, строганый, камерной сушки 70-90 мм. с двух сторон.
Лестница (при наличии второго этажа) Деревянная, одно или двухмаршевая. Перила- заводские резные, балясины- заводские точеные, устанавливаются стартовые точёные столбы. Ступени 40х200 мм. Тетива лестницы- 90х140 мм.
Крыша Двускатная, ломаная или вальмовая в соответствии с проектом.
Стропильная система Выполнена из строганой доски камерной сушки 45х145/45х195+/-5 мм. Шаг установки стропил 590 мм.
Обрешётка Выполняется из строганой доски камерной сушки толщиной 20х95+/-5 мм. Шаг крепления обрешетки 350 мм. Контробрешётка выполняется из строганого бруска камерной сушки 45х45+/-5 мм. Крепится по стропилам (вентиляционный зазор).
Подкровельная мембрана Ондутис А100
Кровельное покрытие (на выбор) Металлочерепица 0,45 мм. Цвет на выбор.
Фронтоны (при наличии) Каркас из строганой доски камерной сушки 45х145/45х195+/-5 мм. Обшиваются имитацией бруса камерной сушки, сорт АВ, толщиной 17 мм. Монтаж через строганый брусок камерной сушки 45х45+/-5 мм. (вентилируемый фасад). Влаго-ветрозащитная мембрана- Ондутис А100. Монтаж вентиляционных решёток.
Свесы крыши Ширина 400 мм. Подшиваются вагонкой камерной сушки, сорт АВ.
Терраса/балкон (при наличии) Устанавливаются опорные столбы из строганного бруса камерной сушки 140х140 мм.
Отделка потолка террасы/балкона Евровагонка камерной сушки толщиной 12,5 мм. сорт АВ.
Пол террасы/балкона Шпунтованная доска камерной сушки толщиной 35-36 мм. сорт АВ.
Ограждение террасы/балкона Перила- строганая доска. Балясины- точеные, фигурные. Либо ограждение в скандинавском стиле. Устанавливаются ступени у входа.
Допуск на геометрические параметры Составляет +/- 50 мм по длине с каждой стороны.
Допускается стыковка имитации бруса, вагонки и половой доски По всему периметру стен дома (если ширина и длина дома более 6,0 метров). Вагонки и доски пола в каждой отдельной комнате.
Допуски по имитации бруса, вагонке, доске +/- 5 мм.
В стоимость включена Доставка комплекта материала в радиусе 500 км. от г. Пестова Новгородской области и сборка дома на вашем участке.
Гарантия 5 лет.
Бытовка строительная 2,0х3,0 м. каркасно-щитовая. Стоимость 23000 руб. Остаётся на участке Заказчика.
Туалет 1,0х1,0 м. каркасно-щитовой. Стоимость 12000 руб. Остаётся на участке Заказчика.
Генератор Стоимость аренды на весь срок строительства 15000 руб. ГСМ за счёт Заказчика.

Постройка каркасных домов может выполняться в нескольких видах: полностью под ключ и под усадку, когда сруб будет отстаиваться некоторое время.

Зимой стоит строить дома в морозную погоду, чтобы каркас не успел промокнуть, летом - не в дождливую.

Подходящими для дачи или сада считают малобюджетные дома на винтовых сваях, на нашем сайте имеются одноэтажные и полуторатажные дома.

В том случае если дом строится для проживания круглый год, предлагаем надежные и теплые коттеджи и дома на плитных и ленточных фундаментах.

Имеется 2 варианта толщины утепления: 200 мм и 150 мм. Каркасные дома с толщиной стен 150 миллиметров получаются дешевле, но не настолько энергоэффективными.

Дополнительные услуги


Каркасник эркером, по плану 34 полутораэтажный с теплоизоляционной двускатной верхней конструкцией здания, выделяется экологической безопасностью, за счет использования стружчатых плит, минеральной и базальтовой ваты, а это обеспечивает замечательную защиту от холода, приятный микроклимат в жилище. Параметры жилища составляют 9х10 м., суммарная жилая площадь - 86.8 кв.м.. Наша компания в минимальные сроки выстроит дом из каркаса по индивидуальному или типовому плану в Азове в любое время года и на любом типе грунта.

Популярные проекты


Бани из бруса с террасой Бани из бруса 6х8 Бани из бруса 7х8
хит продаж
Тип: с балконом, с маленькой террасой
Общая площадь: 2
2640000
от 2514300
хит продаж
Тип:
Общая площадь: 2
1959600
от 1866300
хит продаж
Тип:
Общая площадь: 2
1980600
от 1886300
Дома из бруса

Заказать или задать вопрос



Заказать или задать вопрос

Заказать звонок