Дома под ключ в Азове
Отзывы из Яндекс Карт
4.9
110 отзывов
Дополнительные услуги 88%
2 154 оценок
Комплектации 89%
1 535 оценок
Планировки 90%
2 484 оценок
Проекты 93%
2 231 оценок
С
Костя Окулов12.04.2026 г.
Наш участок с уклоном, боялся, что будут проблемы с фундаментом. Их специалист приехал, посмотрел, предложил вариант свайно-ростверкового. Сделали качественно, дом стоит как влитой.
С
Игорь Столяров03.03.2026 г.
Поначалу боялся отдавать деньги вперед, но в «БрусДома» сделали поэтапную оплату. Строил баню 4х6 с бассейном и беседкой. Все этапы подписывали, фотоотчеты присылали, даже когда я в командировке был. Баней доволен как слон.
С
Залина Булгакова14.02.2025 г.
Наша баня стала настоящим украшением участка, она идеально вписалась в ландшафт и радует глаз аккуратными формами и натуральным цветом древесины, которая не темнеет со временем благодаря специальной обработке, рекомендованной вашими технологами.
Отзывы из Google Карт
4.8
66 отзывов
Дополнительные услуги 88%
2 154 оценок
Комплектации 89%
1 535 оценок
Планировки 90%
2 484 оценок
Проекты 93%
2 231 оценок
С
Ванда Софронова08.02.2026 г.
Я люблю, когда всё по плану, а строительство — всегда импровизация. Но тут хотя бы всегда предупреждали об изменениях заранее, и я могла скорректировать свои графики.
С
Стас10.08.2025 г.
Работали в сложных погодных условиях, но бригада не сбавила темп и не потеряла в качестве. Все было сделано в оговоренные сроки, без лишних проволочек. Я ценю такой ответственный подход к делу и обязательно порекомендую Брус дома своим знакомым.
Отзывы из 2гис
4.9
31 отзывов
Дополнительные услуги 88%
2 154 оценок
Комплектации 89%
1 535 оценок
Планировки 90%
2 484 оценок
Проекты 93%
2 231 оценок
С
Анфиса04.05.2026 г.
Баню 4х8 с террасой и печкой строили в прошлом году. Всё хорошо, но когда приехали в первый раз париться, обнаружили что полок шатается. Оказалось, прикрутили на два самореза вместо четырёх. Сама доделала, заморачиваться не стала.
С
Надежда08.01.2026 г.
Иногда жалею, что не заказала сразу и беседку. На следующий год обязательно обратимся снова, благо опыт сотрудничества уже положительный.
С
Тёма Софронов11.05.2025 г.
Я в восторге от сотрудничества с этой компанией. Строил баню и остался доволен абсолютно всем начиная от цены и заканчивая качеством. Приятно иметь дело с профессионалами которые не бросают слов на ветер и выполняют свои обязательства. Баня получилась очень уютной и тёплой теперь паримся каждую неделю.


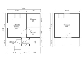
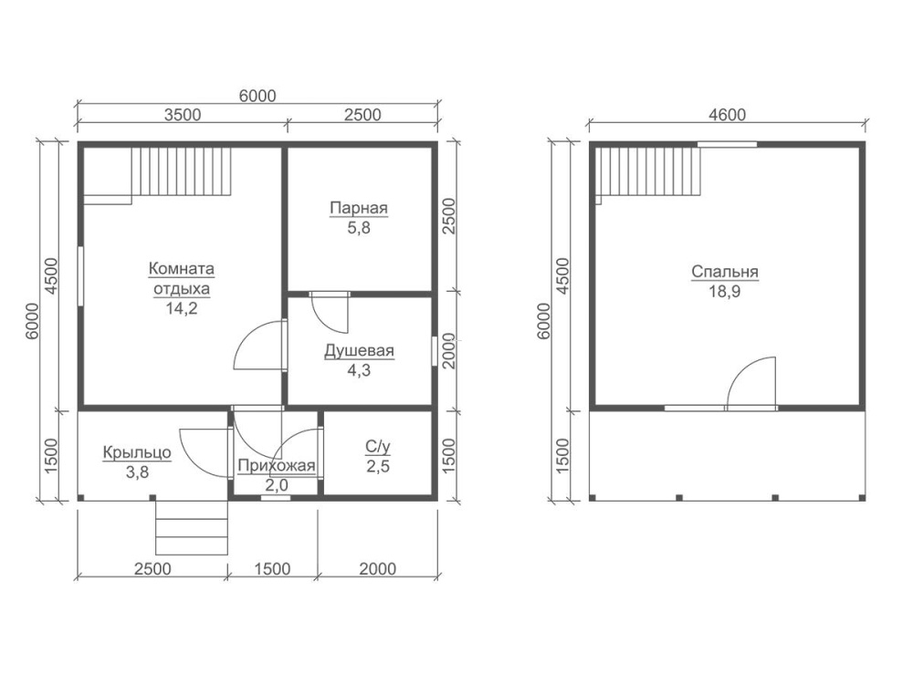
Проект №4 Каркасная баня 6х6

каркас из строганой доски
Создайте свой план для этого проекта
и отправьте его нам на расчет в один клик.
Каркасный дом (150 мм) 6х6 Толщина утепления 150 мм 2026300 Заказать
Каркасный дом (200 мм) 6х6 Толщина утепления 200 мм 2166300 Заказать

Доставка включена в стоимость дома!

Воспользуйтесь нашим планировщиком для того, чтобы получить свою персональную планировку.

С помощью планировщика можно сделать наиболее подходящие схемы, планы, эскизы, чертежи намеченной бани с эркером, мансардой, с необходимым количеством комнат. Вы получите проект с отличной планировкой, на 100% отвечающий вашим условиям.

При заказе бани можно выбрать вид кровли. Вашу крышу можно сделать двускатной, четырехскатной и вальмовой. Двухскатную считают особенно востребованной у малометражных построек.

Популярные размеры бань на сегодняшний день: мини - до 36 кв. М (в основном, одноэтажные); компактные - от 36м2 до 70 квадратов (обычно 2-этажные); большие - от 70 м2 и больше.


Наши работы

Перейти в галерею


Комплектация

Площадь застройки: 36 м2
Длина: 6 м
Ширина: 6 м
Общая площадь: 51 м2
Исполнение Под ключ (с отделкой)
Фундамент Свайно-винтовой или ж/б сваи (рассчитываются отдельно).
Гидроизоляция фундамента Рубероид в два слоя.
Основание (обвязка) Из обрезного бруса 150х150 мм. 150х200 мм. согласно выбранной толщине утепления. Торцевая строганая доска камерной сушки 45х145/45х195+/-5 мм. Обработка антисептиком.
Цокольное перекрытие Строганая доска камерной сушки 45х145/45х195+/-5 мм. с шагом 590 мм. Обработка антисептиком.
Пол черновой Обрезная доска камерной сушки 20х100 мм.
Влаго-ветрозащита чернового пола Мембрана Ондутис А100.
Внешние стены Стойки каркаса из строганой доски камерной сушки 45х145/45х195+/-5 мм. с шагом 590 мм. Верхняя двойная и нижняя обвязки из строганой доски камерной сушки 45х145/45х195+/-5 мм. Разгрузочный ригель из строганой доски 45х145+/-5 мм. Укосины из строганой доски 20х95 мм.
Перегородки Стойки каркаса из строганой доски камерной сушки 45х95+/-5 мм. с шагом 590 мм. Верхняя двойная и нижняя обвязки из строганой доски 45х95+/-5 мм. Разгрузочный ригель из строганой доски камерной сушки 45х145+/-5 мм. Укосины из строганой доски камерной сушки 20х95 мм.
Сборка каркаса На гвозди.
Высота от пола до потолка Баня одноэтажная: 2,5 м. Баня с мансардой: 1-ый этаж- 2,5 м.
2-ой этаж (мансарда)- 2,3 м.
Баня в полтора и два этажа:
1-ый этаж 2,5 м.
2-ой этаж 2,4 м. в полутораэтажной бане.
2,5 м. в двухэтажной бане.
Внешняя отделка стен Имитация бруса камерной сушки, сорт АВ, толщиной 17 мм. Монтаж через строганый брусок камерной сушки 45х45+/-5 мм. (вентилируемый фасад). Влаго-ветрозащитная мембрана- Ондутис А100.
Внутренняя отделка стен, перегородок Евровагонка камерной сушки, сорт АВ, толщиной 12,5 мм. по строганой рейке 20х40+/-5 мм. либо ГКЛ 12,5 мм.
Отделка потолка Евровагонка камерной сушки, сорт АВ, толщиной 12,5 мм. по строганой рейке 20х40+/-5 мм. либо ГКЛ 12,5 мм.
Пол чистовой Шпунтованная доска камерной сушки толщиной 35-36 мм. сорт АВ. по строганой рейке 20х40+/-5 мм. либо шпунтованная ДСП 16 мм. по разряженной обрешётке из строганой доски камерной сушки 20х95+/-5 мм.
Утепление (пол, потолок) Минеральная вата Knauf 150/200 мм. согласно выбранной толщине утепления.
Утепление стен Плитный утеплитель Rockwool, толщиной 150/200 мм. согласно выбранной толщине утепления.
Звукоизоляция перегородок Плитный утеплитель Rockwool, толщиной 100 мм.
Пароизоляция (стены, перегородки, пол, потолок) Плёнка Ондутис R70. Дополнительная герметизация нахлёстов/примыканий пароизоляционной плёнки клейкой лентой Delta.
Отделка парной Отделка осиновой вагонкой камерной сушки, сорт АВ по фольге, через строганую рейку 20х40+/-5 мм. (вентиляционный зазор). Установка пологов из осины.
Окна Двухкамерные стеклопакеты ПВХ белого цвета, профиль 60 мм. В комплекте: отливы, подоконники, москитные сетки.
Двери Входная- металлическая, утеплённая (Россия). Межкомнатные- филёнчатые. В душевую/парную- клиновые (банные).
Наличники на окна и двери Наличник деревянный, строганый, камерной сушки 70-90 мм. с двух сторон.
Лестница (при наличии второго этажа) Деревянная, одно или двухмаршевая. Перила- заводские резные, балясины- заводские точеные, устанавливаются стартовые точёные столбы. Ступени 40х200 мм. Тетива лестницы- 90х140 мм.
Крыша Двускатная, ломаная или вальмовая в соответствии с проектом.
Стропильная система Выполнена из строганой доски камерной сушки 45х145/45х195+/-5 мм. Шаг установки стропил 590 мм.
Обрешётка Выполняется из строганой доски камерной сушки толщиной 20х95+/-5 мм. Шаг крепления обрешетки 350 мм. Контробрешётка выполняется из строганого бруска камерной сушки 45х45+/-5 мм. Крепится по стропилам (вентиляционный зазор).
Подкровельная мембрана Ондутис А100
Кровельное покрытие (на выбор) Металлочерепица 0,45 мм. Цвет на выбор.
Фронтоны (при наличии) Каркас из строганой доски камерной сушки 45х145/45х195+/-5 мм. Обшиваются имитацией бруса камерной сушки, сорт АВ, толщиной 17 мм. Монтаж через строганый брусок камерной сушки 45х45+/-5 мм. (вентилируемый фасад). Влаго-ветрозащитная мембрана- Ондутис А100. Монтаж вентиляционных решёток.
Свесы крыши Ширина 400 мм. Подшиваются вагонкой камерной сушки, сорт АВ.
Терраса/балкон (при наличии) Устанавливаются опорные столбы из строганного бруса камерной сушки 140х140 мм.
Отделка потолка террасы/балкона Евровагонка камерной сушки толщиной 12,5 мм. сорт АВ.
Пол террасы/балкона Шпунтованная доска камерной сушки толщиной 35-36 мм. сорт АВ.
Ограждение террасы/балкона Перила- строганая доска. Балясины- точеные, фигурные. Либо ограждение в скандинавском стиле. Устанавливаются ступени у входа.
Допуск на геометрические параметры Составляет +/- 50 мм по длине с каждой стороны.
Допускается стыковка имитации бруса, вагонки и половой доски По всему периметру стен бани (если ширина и длина бани более 6,0 метров). Вагонки и доски пола в каждой отдельной комнате.
Допуски по имитации бруса, вагонке, доске +/- 5 мм.
В стоимость включена Доставка комплекта материала в радиусе 500 км. от г. Пестова Новгородской области и сборка дома на вашем участке.
Гарантия 5 лет.
Печь По запросу.
Бытовка строительная 2,0х3,0 м. каркасно-щитовая. Стоимость 23000 руб. Остаётся на участке Заказчика.
Туалет 1,0х1,0 м. каркасно-щитовой. Стоимость 12000 руб. Остаётся на участке Заказчика.
Генератор Стоимость аренды на весь срок строительства 15000 руб. ГСМ за счёт Заказчика.

Сооружение каркасной бани может выполняться в двух видах: под усадку, когда дом будет отстаиваться определенное время и полностью под ключ.

В мороз надежнее строить в холодную погоду, чтобы каркас не промок, в летнее время - не в дождливую.

Оптимальными для сада или дачи стали экономичные бани на винтовых сваях, у нас имеются одноэтажные и полуторатажные варианты.

Мы можем предложить два варианта толщины утепления: 200 мм и 150 мм. Каркасные бани с утеплителем сто пятьдесят миллиметров получаются дешевле, но не такими теплыми.

Дополнительные услуги



Популярные проекты


Каркасные дома 8х8 Бани из бруса 7х8 Бани из бруса 10х8
Дома из бруса

Заказать или задать вопрос



Заказать или задать вопрос

Заказать звонок