Дома под ключ в Азове
Отзывы из Яндекс Карт
4.9
115 отзывов
Дополнительные услуги 88%
2 154 оценок
Комплектации 89%
1 535 оценок
Планировки 90%
2 484 оценок
Проекты 93%
2 231 оценок
С
Юлиан Евдокимов24.01.2026 г.
Строил себе дачу 4х8 с мансардой. БрусДома сделали за 20 дней. Недорого, но качество среднее: щели между брусом местами по 5 мм. Конопатил сам, мучался.
С
Катя Успенская27.05.2025 г.
Я оцениваю работу компании с точки зрения логиста (я сама работаю в этой сфере). Организация процессов была безупречной: материалы привозили точно в срок, без задержек, бригады работали без простоев, все этапы были чётко спланированы. Это высший пилотаж!
Отзывы из Google Карт
4.8
69 отзывов
Дополнительные услуги 88%
2 154 оценок
Комплектации 89%
1 535 оценок
Планировки 90%
2 484 оценок
Проекты 93%
2 231 оценок
С
Алексия В.13.05.2026 г.
Принимали работу поэтапно: фундамент, коробка, крыша, внутренняя отделка. На каждом этапе подписывали акты, все было четко. Это давало спокойствие, что ничего не упустим. В итоге получили дом, в котором уже два года все работает.
С
Венера Ермолаева09.03.2026 г.
Дождались своей очереди — построили дом 12х12 с гаражом и баней под одной крышей. Огромный, красивый, но денег ушло как на самолёт. Теперь муж говорит, что надо было брать меньше. Я считаю — нормально, главное что качественно.
С
Матвей С.23.02.2026 г.
Заказал баню 5,5х8,5 с беседкой и мансардой, получилось как на картинке. Бригада работала топорно, я переживал, но в итоге все щели законопатили, баня парит отлично. Удивило, что чек дали электронный и акт выполненных работ без напоминаний.
С
Элла Дегтярева11.07.2025 г.
Я в полном восторге от нашего нового каркасного дома, который построила для нас компания «Брус дома» — работа была выполнена в оговоренные сроки, без каких-либо скрытых накладок или неприятных сюрпризов. Особую благодарность хочу выразить прорабу и его бригаде за чистоту на объекте и аккуратность в работе.
Отзывы из 2гис
4.9
31 отзывов
Дополнительные услуги 88%
2 154 оценок
Комплектации 89%
1 535 оценок
Планировки 90%
2 484 оценок
Проекты 93%
2 231 оценок
С
Макс Гончаров30.04.2026 г.
Зимой строить не советую, даже они сами предупреждали. Заказал 6х9 с котельной, начали в ноябре — раствор мёрз, бригада косячила с геометрией. Весной перекладывали венцы. Теперь дом стоит ровно, но нервов потрачено много.
С
Юлиан О.20.02.2025 г.
С самого первого дня общения с менеджерами компании я понял, что попал в руки настоящих профессионалов, которые подробно ответили на все мои вопросы и предложили оптимальный проект каркасного дома, полностью соответствующий моим пожеланиям и бюджету.


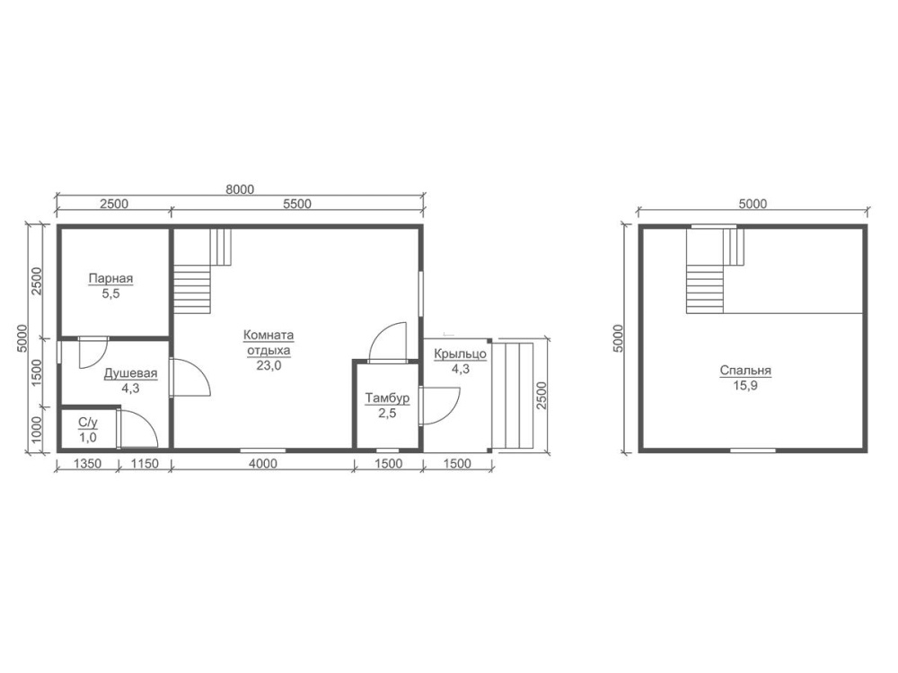
Проект №12 Каркасная баня 5х8

каркас из строганой доски
Создайте свой план для этого проекта
и отправьте его нам на расчет в один клик.
Каркасный дом (150 мм) 5х8 Толщина утепления 150 мм 2296300 Заказать
Каркасный дом (200 мм) 5х8 Толщина утепления 200 мм 2476300 Заказать

Доставка включена в стоимость дома!

Воспользуйтесь нашим планировщиком для того, чтобы получить свою персональную планировку.

С помощью планировщика можно сделать наиболее подходящие схемы, планы, эскизы, чертежи намеченной бани с эркером, мансардой, с необходимым количеством комнат. Вы получите проект с отличной планировкой, на 100% отвечающий вашим условиям.

При заказе бани можно выбрать вид кровли. Вашу крышу можно сделать двускатной, четырехскатной и вальмовой. Двухскатную считают особенно востребованной у малометражных построек.

Популярные размеры бань на сегодняшний день: мини - до 36 кв. М (в основном, одноэтажные); компактные - от 36м2 до 70 квадратов (обычно 2-этажные); большие - от 70 м2 и больше.


Наши работы

Перейти в галерею


Комплектация

Площадь застройки: 43 м2
Длина: 5 м
Ширина: 8 м
Общая площадь: 56 м2
Исполнение Под ключ (с отделкой)
Фундамент Свайно-винтовой или ж/б сваи (рассчитываются отдельно).
Гидроизоляция фундамента Рубероид в два слоя.
Основание (обвязка) Из обрезного бруса 150х150 мм. 150х200 мм. согласно выбранной толщине утепления. Торцевая строганая доска камерной сушки 45х145/45х195+/-5 мм. Обработка антисептиком.
Цокольное перекрытие Строганая доска камерной сушки 45х145/45х195+/-5 мм. с шагом 590 мм. Обработка антисептиком.
Пол черновой Обрезная доска камерной сушки 20х100 мм.
Влаго-ветрозащита чернового пола Мембрана Ондутис А100.
Внешние стены Стойки каркаса из строганой доски камерной сушки 45х145/45х195+/-5 мм. с шагом 590 мм. Верхняя двойная и нижняя обвязки из строганой доски камерной сушки 45х145/45х195+/-5 мм. Разгрузочный ригель из строганой доски 45х145+/-5 мм. Укосины из строганой доски 20х95 мм.
Перегородки Стойки каркаса из строганой доски камерной сушки 45х95+/-5 мм. с шагом 590 мм. Верхняя двойная и нижняя обвязки из строганой доски 45х95+/-5 мм. Разгрузочный ригель из строганой доски камерной сушки 45х145+/-5 мм. Укосины из строганой доски камерной сушки 20х95 мм.
Сборка каркаса На гвозди.
Высота от пола до потолка Баня одноэтажная: 2,5 м. Баня с мансардой: 1-ый этаж- 2,5 м.
2-ой этаж (мансарда)- 2,3 м.
Баня в полтора и два этажа:
1-ый этаж 2,5 м.
2-ой этаж 2,4 м. в полутораэтажной бане.
2,5 м. в двухэтажной бане.
Внешняя отделка стен Имитация бруса камерной сушки, сорт АВ, толщиной 17 мм. Монтаж через строганый брусок камерной сушки 45х45+/-5 мм. (вентилируемый фасад). Влаго-ветрозащитная мембрана- Ондутис А100.
Внутренняя отделка стен, перегородок Евровагонка камерной сушки, сорт АВ, толщиной 12,5 мм. по строганой рейке 20х40+/-5 мм. либо ГКЛ 12,5 мм.
Отделка потолка Евровагонка камерной сушки, сорт АВ, толщиной 12,5 мм. по строганой рейке 20х40+/-5 мм. либо ГКЛ 12,5 мм.
Пол чистовой Шпунтованная доска камерной сушки толщиной 35-36 мм. сорт АВ. по строганой рейке 20х40+/-5 мм. либо шпунтованная ДСП 16 мм. по разряженной обрешётке из строганой доски камерной сушки 20х95+/-5 мм.
Утепление (пол, потолок) Минеральная вата Knauf 150/200 мм. согласно выбранной толщине утепления.
Утепление стен Плитный утеплитель Rockwool, толщиной 150/200 мм. согласно выбранной толщине утепления.
Звукоизоляция перегородок Плитный утеплитель Rockwool, толщиной 100 мм.
Пароизоляция (стены, перегородки, пол, потолок) Плёнка Ондутис R70. Дополнительная герметизация нахлёстов/примыканий пароизоляционной плёнки клейкой лентой Delta.
Отделка парной Отделка осиновой вагонкой камерной сушки, сорт АВ по фольге, через строганую рейку 20х40+/-5 мм. (вентиляционный зазор). Установка пологов из осины.
Окна Двухкамерные стеклопакеты ПВХ белого цвета, профиль 60 мм. В комплекте: отливы, подоконники, москитные сетки.
Двери Входная- металлическая, утеплённая (Россия). Межкомнатные- филёнчатые. В душевую/парную- клиновые (банные).
Наличники на окна и двери Наличник деревянный, строганый, камерной сушки 70-90 мм. с двух сторон.
Лестница (при наличии второго этажа) Деревянная, одно или двухмаршевая. Перила- заводские резные, балясины- заводские точеные, устанавливаются стартовые точёные столбы. Ступени 40х200 мм. Тетива лестницы- 90х140 мм.
Крыша Двускатная, ломаная или вальмовая в соответствии с проектом.
Стропильная система Выполнена из строганой доски камерной сушки 45х145/45х195+/-5 мм. Шаг установки стропил 590 мм.
Обрешётка Выполняется из строганой доски камерной сушки толщиной 20х95+/-5 мм. Шаг крепления обрешетки 350 мм. Контробрешётка выполняется из строганого бруска камерной сушки 45х45+/-5 мм. Крепится по стропилам (вентиляционный зазор).
Подкровельная мембрана Ондутис А100
Кровельное покрытие (на выбор) Металлочерепица 0,45 мм. Цвет на выбор.
Фронтоны (при наличии) Каркас из строганой доски камерной сушки 45х145/45х195+/-5 мм. Обшиваются имитацией бруса камерной сушки, сорт АВ, толщиной 17 мм. Монтаж через строганый брусок камерной сушки 45х45+/-5 мм. (вентилируемый фасад). Влаго-ветрозащитная мембрана- Ондутис А100. Монтаж вентиляционных решёток.
Свесы крыши Ширина 400 мм. Подшиваются вагонкой камерной сушки, сорт АВ.
Терраса/балкон (при наличии) Устанавливаются опорные столбы из строганного бруса камерной сушки 140х140 мм.
Отделка потолка террасы/балкона Евровагонка камерной сушки толщиной 12,5 мм. сорт АВ.
Пол террасы/балкона Шпунтованная доска камерной сушки толщиной 35-36 мм. сорт АВ.
Ограждение террасы/балкона Перила- строганая доска. Балясины- точеные, фигурные. Либо ограждение в скандинавском стиле. Устанавливаются ступени у входа.
Допуск на геометрические параметры Составляет +/- 50 мм по длине с каждой стороны.
Допускается стыковка имитации бруса, вагонки и половой доски По всему периметру стен бани (если ширина и длина бани более 6,0 метров). Вагонки и доски пола в каждой отдельной комнате.
Допуски по имитации бруса, вагонке, доске +/- 5 мм.
В стоимость включена Доставка комплекта материала в радиусе 500 км. от г. Пестова Новгородской области и сборка дома на вашем участке.
Гарантия 5 лет.
Печь По запросу.
Бытовка строительная 2,0х3,0 м. каркасно-щитовая. Стоимость 23000 руб. Остаётся на участке Заказчика.
Туалет 1,0х1,0 м. каркасно-щитовой. Стоимость 12000 руб. Остаётся на участке Заказчика.
Генератор Стоимость аренды на весь срок строительства 15000 руб. ГСМ за счёт Заказчика.

Сооружение каркасной бани может выполняться в двух видах: под усадку, когда дом будет отстаиваться определенное время и полностью под ключ.

В мороз надежнее строить в холодную погоду, чтобы каркас не промок, в летнее время - не в дождливую.

Оптимальными для сада или дачи стали экономичные бани на винтовых сваях, у нас имеются одноэтажные и полуторатажные варианты.

Мы можем предложить два варианта толщины утепления: 200 мм и 150 мм. Каркасные бани с утеплителем сто пятьдесят миллиметров получаются дешевле, но не такими теплыми.

Дополнительные услуги



Популярные проекты


Дома из бруса 4х5 Дома из бруса 9х10 Двухэтажные бани из бруса
Дома из бруса

Заказать или задать вопрос



Заказать или задать вопрос

Заказать звонок