Дома под ключ в Азове
Отзывы из Яндекс Карт
4.9
93 отзывов
Дополнительные услуги 88%
2 154 оценок
Комплектации 89%
1 535 оценок
Планировки 90%
2 484 оценок
Проекты 93%
2 231 оценок
С
Агап Киреев21.08.2025 г.
Обратился в компанию по совету друга и теперь сам с удовольствием рекомендую «Брус дома» всем знакомым — построили мне каркасный дом, который превзошёл все ожидания. Очень порадовала система вентиляции и продуманное утепление, в доме дышится легко и при этом всегда комфортная температура. Спасибо за вашу работу, вы делаете людей по-настоящему счастливыми, даря им свой уголок.
Отзывы из Google Карт
4.8
56 отзывов
Дополнительные услуги 88%
2 154 оценок
Комплектации 89%
1 535 оценок
Планировки 90%
2 484 оценок
Проекты 93%
2 231 оценок
С
Яков29.04.2026 г.
Сосед посоветовал, сам у них дом 7х7 строил. Взял проект 9х9 с панорамным остеклением и сауной. Сауну внутри сделали классно, а вот систему вентиляции забыли — теперь сам доделываю.
С
Арина Быкова03.03.2026 г.
Взяли дом под усадку 5х8 с верандой, через год планируем отделку. Бревно лежало под навесом, не почернело. Сосед посмотрел, сказал, что геометрия хорошая, молодец выбор. Я тоже довольна, хоть и переплатила за доставку.
С
Гера К.22.02.2026 г.
Построил баню 5х6 с панорамным остеклением в парной — вид на лес нереальный. Правда, стекла мыли потом долго от строительной пыли, но это мелочи, ребята предупреждали.
С
Лолита Котова31.01.2026 г.
С баней получилась просто сказка! Паримся с подругами каждые выходные. Делали «под усадку», так что пришлось ждать, но оно того стоило — дерево сейчас просто идеальное, аромат невероятный.
С
Сеня09.04.2025 г.
Обратился в компанию Брус дома с мечтой о собственной бане из профилированного бруса и ни разу не пожалел о своём выборе, ведь специалисты предложили мне действительно качественный проект, а строительная бригада работала слаженно и аккуратно, оставив после себя идеально чистую территорию и прекрасное строение, которое радует меня каждый день своим неповторимым ароматом дерева и уютной атмосферой.
Отзывы из 2гис
4.9
31 отзывов
Дополнительные услуги 88%
2 154 оценок
Комплектации 89%
1 535 оценок
Планировки 90%
2 484 оценок
Проекты 93%
2 231 оценок
С
Лолита Кислова08.02.2025 г.
Мне безумно нравится, как естественно и органично смотрится мой дом из профилированного бруса на фоне сосен — он будто всегда здесь стоял, такой натуральный, дышащий и по-настоящему живой.


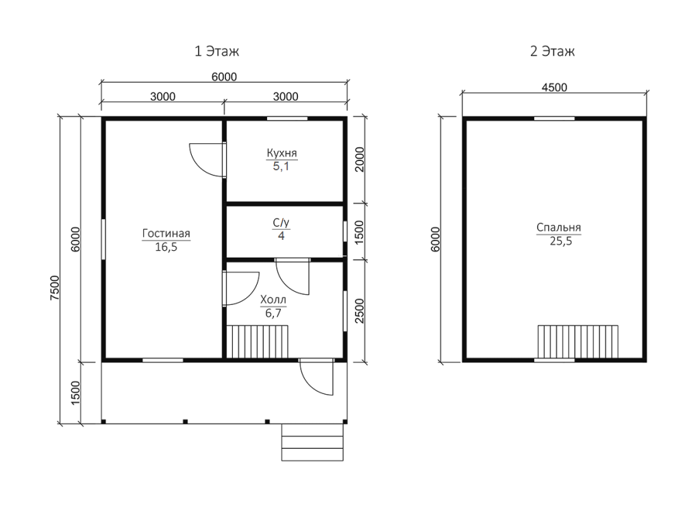
Проект №18 Дом с террасой 7,5х6

каркас из строганой доски
Создайте свой план для этого проекта
и отправьте его нам на расчет в один клик.
Каркасный дом (150 мм) 6х7,5 Толщина утепления 150 мм 2096300 Заказать
Каркасный дом (200 мм) 6х7,5 Толщина утепления 200 мм 2256300 Заказать

Доставка включена в стоимость дома!

Чтобы адаптировать готовые проекты и получить свою индивидуальную планировку, воспользуйтесь нашим планировщиком.

С использованием планировщика вы можете сделать наиболее подходящие планы, эскизы, схемы, чертежи вашего будущего дома с мансардой, эркером, с нужным количеством комнат. В итоге получится прекрасный проект, который стопроцентно отвечает вашим потребностям.

Вы можете подобрать подходящий тип кровли. Крышу можно сделать двускатной, четырехскатной и вальмовой. Двухскатную крышу считают наиболее популярной в небольших постройках.

Востребованные размеры сегодня: мини - до 50 квадратных метров (в основном, одноэтажные); компактные - от 70 до 100 кв. М (обычно 2-этажные); большие постройки - начиная от 150 квадратов и больше.

Можем предложить дуплексы - большие каркасные постройки с двумя входами на 2 семьи. Такие дома предполагаются для нескольких хозяев, они разделяются на две части, каждая половина с отдельным входом.


Наши работы

Перейти в галерею


Комплектация

Площадь застройки: 45 м2
Длина: 7.5 м
Ширина: 6 м
Общая площадь: 58.82 м2
Исполнение Под ключ (с отделкой)
Фундамент Свайно-винтовой или ж/б сваи (рассчитываются отдельно).
Гидроизоляция фундамента Рубероид в два слоя.
Основание (обвязка) Из обрезного бруса 150х150 мм. 150х200 мм. согласно выбранной толщине утепления. Торцевая доска строганая 45х145/45х195+/-5 мм. согласно выбранной толщине утепления. Обработка антисептиком.
Цокольное перекрытие Строганая доска камерной сушки 45х145/45х195+/-5 мм. с шагом 590 мм. Обработка антисептиком.
Пол черновой Обрезная доска камерной сушки 20х100 мм.
Влаго-ветрозащита чернового пола Мембрана Ондутис А100.
Внешние стены Стойки каркаса из строганой доски камерной сушки 45х145/45х195+/-5 мм. с шагом 590 мм. Верхняя двойная и нижняя обвязки из строганой доски камерной сушки 45х145/45х195+/-5 мм. Разгрузочный ригель из строганой доски 45х145+/-5 мм. Укосины из строганой доски 20х95 мм.
Перегородки Стойки каркаса из строганой доски камерной сушки 45х95+/-5 мм. с шагом 590 мм. Верхняя двойная и нижняя обвязки из строганой доски 45х95+/-5 мм. Разгрузочный ригель из строганой доски камерной сушки 45х145+/-5 мм. Укосины из строганой доски камерной сушки 20х95 мм.
Сборка каркаса На гвозди.
Высота от пола до потолка Дом одноэтажный: 2,5 м. Дом с мансардой: 1-ый этаж- 2,5 м.
2-ой этаж (мансарда)- 2,3 м.
Дом в полтора и два этажа:
1-ый этаж 2,5 м.
2-ой этаж 2,4 м. в полутораэтажном доме
2,5 м. в двухэтажном доме.
Внешняя отделка стен Имитация бруса камерной сушки, сорт АВ, толщиной 17 мм. Монтаж через строганый брусок камерной сушки 45х45+/-5 мм. (вентилируемый фасад). Влаго-ветрозащитная мембрана- Ондутис А100.
Внутренняя отделка стен, перегородок Евровагонка камерной сушки, сорт АВ, толщиной 12,5 мм. по строганой рейке 20х40+/-5 мм. либо ГКЛ 12,5 мм.
Отделка потолка Евровагонка камерной сушки, сорт АВ толщиной, 12,5 мм. по строганой рейке 20х40+/-5 мм. либо ГКЛ 12,5 мм.
Пол чистовой Шпунтованная доска камерной сушки толщиной 35-36 мм. сорт АВ. по строганой рейке 20х40+/-5 мм. либо шпунтованная ДСП 16 мм. по разряженной обрешётке из строганой доски камерной сушки 20х95+/-5 мм.
Утепление (пол, потолок) Минеральная вата Knauf 150/200 мм. согласно выбранной толщине утепления.
Утепление стен Плитный утеплитель Rockwool, толщиной 150/200 мм. согласно выбранной толщине утепления.
Звукоизоляция перегородок Плитный утеплитель Rockwool, толщиной 100 мм.
Пароизоляция (стены, перегородки, пол, потолок) Плёнка Ондутис R70. Дополнительная герметизация нахлёстов/примыканий пароизоляционной плёнки клейкой лентой Delta.
Окна Двухкамерные стеклопакеты ПВХ белого цвета, профиль 60 мм. В комплекте: отливы, подоконники, москитные сетки.
Двери Входная- металлическая, утеплённая (Россия). Межкомнатные- филёнчатые.
Наличники на окна и двери Наличник деревянный, строганый, камерной сушки 70-90 мм. с двух сторон.
Лестница (при наличии второго этажа) Деревянная, одно или двухмаршевая. Перила- заводские резные, балясины- заводские точеные, устанавливаются стартовые точёные столбы. Ступени 40х200 мм. Тетива лестницы- 90х140 мм.
Крыша Двускатная, ломаная или вальмовая в соответствии с проектом.
Стропильная система Выполнена из строганой доски камерной сушки 45х145/45х195+/-5 мм. Шаг установки стропил 590 мм.
Обрешётка Выполняется из строганой доски камерной сушки толщиной 20х95+/-5 мм. Шаг крепления обрешетки 350 мм. Контробрешётка выполняется из строганого бруска камерной сушки 45х45+/-5 мм. Крепится по стропилам (вентиляционный зазор).
Подкровельная мембрана Ондутис А100
Кровельное покрытие (на выбор) Металлочерепица 0,45 мм. Цвет на выбор.
Фронтоны (при наличии) Каркас из строганой доски камерной сушки 45х145/45х195+/-5 мм. Обшиваются имитацией бруса камерной сушки, сорт АВ, толщиной 17 мм. Монтаж через строганый брусок камерной сушки 45х45+/-5 мм. (вентилируемый фасад). Влаго-ветрозащитная мембрана- Ондутис А100. Монтаж вентиляционных решёток.
Свесы крыши Ширина 400 мм. Подшиваются вагонкой камерной сушки, сорт АВ.
Терраса/балкон (при наличии) Устанавливаются опорные столбы из строганного бруса камерной сушки 140х140 мм.
Отделка потолка террасы/балкона Евровагонка камерной сушки толщиной 12,5 мм. сорт АВ.
Пол террасы/балкона Шпунтованная доска камерной сушки толщиной 35-36 мм. сорт АВ.
Ограждение террасы/балкона Перила- строганая доска. Балясины- точеные, фигурные. Либо ограждение в скандинавском стиле. Устанавливаются ступени у входа.
Допуск на геометрические параметры Составляет +/- 50 мм по длине с каждой стороны.
Допускается стыковка имитации бруса, вагонки и половой доски По всему периметру стен дома (если ширина и длина дома более 6,0 метров). Вагонки и доски пола в каждой отдельной комнате.
Допуски по имитации бруса, вагонке, доске +/- 5 мм.
В стоимость включена Доставка комплекта материала в радиусе 500 км. от г. Пестова Новгородской области и сборка дома на вашем участке.
Гарантия 5 лет.
Бытовка строительная 2,0х3,0 м. каркасно-щитовая. Стоимость 23000 руб. Остаётся на участке Заказчика.
Туалет 1,0х1,0 м. каркасно-щитовой. Стоимость 12000 руб. Остаётся на участке Заказчика.
Генератор Стоимость аренды на весь срок строительства 15000 руб. ГСМ за счёт Заказчика.

Постройка каркасных домов может выполняться в нескольких видах: полностью под ключ и под усадку, когда сруб будет отстаиваться некоторое время.

Зимой стоит строить дома в морозную погоду, чтобы каркас не успел промокнуть, летом - не в дождливую.

Подходящими для дачи или сада считают малобюджетные дома на винтовых сваях, на нашем сайте имеются одноэтажные и полуторатажные дома.

В том случае если дом строится для проживания круглый год, предлагаем надежные и теплые коттеджи и дома на плитных и ленточных фундаментах.

Имеется 2 варианта толщины утепления: 200 мм и 150 мм. Каркасные дома с толщиной стен 150 миллиметров получаются дешевле, но не настолько энергоэффективными.

Дополнительные услуги


Каркасник маленькой террасой, по плану 18 полутораэтажный с теплоизоляционной двускатной верхней конструкцией здания, выделяется экологической безопасностью, за счет использования стружчатых плит, минеральной и базальтовой ваты, а это обеспечивает замечательную защиту от холода, приятный микроклимат в жилище. Параметры жилища составляют 6х7,5 м., суммарная жилая площадь - 58.82 кв.м.. Наша компания в минимальные сроки выстроит дом из каркаса по индивидуальному или типовому плану в Азове в любое время года и на любом типе грунта.

Популярные проекты


Дома из бруса 6х6 Дома из бруса более 100 кв.м. Маленькие бани из бруса
хит продаж
Тип: с балконом, с маленькой террасой
Общая площадь: 2
1991100
от 1896300
хит продаж
Тип: с маленькой террасой
Общая площадь: 2
2211600
от 2106300
хит продаж
Тип: с большой террасой
Общая площадь: 2
2169600
от 2066300
Дома из бруса

Заказать или задать вопрос



Заказать или задать вопрос

Заказать звонок